Имеется Toyota Land Cruiser 200 2007 года выпуска.
Требуется подключить компьютер к штатному монитору и усилителю. Ввиду того что штатная навигация на машинах 2007 года нормально не функционирует основное внимание при установке компьютера сделан на программы навигации.
Для подключения звука покупаем AZ-FM. Вопросы по его установки обсуждаются в этой теме. Здесь отображу некоторые подробности касающиеся LC 200.
Голова.
Подключаемся между головой и усилителем. Усилитель находится под водительским сиденьем.
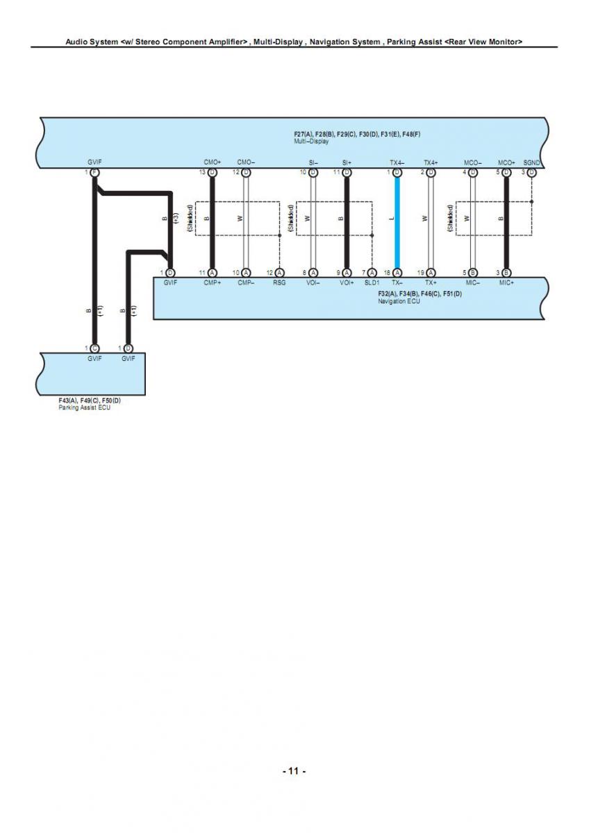
Схема подключения.
Электрическая схема Audio System <w/ Stereo Component Amplifier> , Multi-Display , Navigation System , Parking Assist <Rear View Monitor> AS-SCA TLK200.pdf
Вид головы сзади.
Нам нужен разъем F19.
Самый большой штекер.
Провода 8, 9, 18, 19. Красный, черный, белый, зеленый. Серый провод 11 - АСС .
Для подключения штатного тача планируется использовать AVC-Lan адаптер на Carduino.
Для его подключения нам нужны провода TX- и TX+.
Провода 18, 19. Белый и синий. Разъем F32.
Фото разъема.
Для подключения монитора был приобретен видеоинтерфейс GVIF.
Подключается возле блока навигации.
Подробно тема подключения монитора освещена здесь.
На данный момент пока что возникли проблемы с подключением видеоинтерфейса. Соответственно, продолжение следует.![]()


Ответить с цитированием

